Collaborative Milestone: Tribal House Project

Huna Tribal House
 

Xunaa Shuká Hít (Huna Ancestors' House)
Building Relationships Through Collaboration

After almost 20 years of collaborative planning, the National Park Service (NPS) and the Hoonah Indian Association (HIA), unveiled the Huna Tribal House, a traditional Łingít structure designed to anchor the Huna Łingít in Glacier Bay, their Ancestral Homeland. Built on the shores of Bartlett Cove near Glacier Bay National Park headquarters, the 2,500 square foot structure serves as a venue for tribal members to reconnect with their traditional Homeland, life-ways, and ancestral knowledge—a focal point for conveying the story of the Huna Łingít, their traditional life-ways, and their evolving relationship with the National Park Service to the visiting public;and a site for appropriate National Park Service administrative activities.

Since its inception, the Tribal House has been a fully collaborative effort between the National Park Service and the Hoonah Indian Association (the federally recognized tribe of the Huna Łingít clans). The tribe actively participated in all phases of the project including development of project mission and objectives, preparation and review of the Environmental Assessment, project design, creation of cultural elements for the facility, and developing operational and interpretive plans. Through a Cooperative Agreement and subsequent modifications, HIA completed various cultural elements for the Tribal House including the elaborately carved and painted interior and exterior house screens and interior house posts. Tribal craftsmen completed carving totem poles to flank the facility in 2017.

Originally conceived as a building intended to memorialize the Huna clans' tie to Glacier Bay Homeland, the Tribal House has become much more for both the Huna Łingít and the National Park Service. The process of working together on this common dream has ensured the preservation of traditional skills and knowledge, encouraged inter-generational learning, engendered communication on a range of issues, and healed and strengthened relationships between the park and the tribe. Most importantly, the project serves as a springboard for healthy communication about how to move forward on other more complex issues related to park management and resource uses. This project recieved regional and national attention as a model for moving beyond consultation to true collaboration.

 
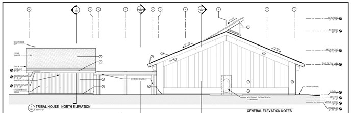
Huna Tribal House architectural rendering
Tribal House architectural design and layout plans
 

Background

Glacier Bay National Park is the Ancestral Homeland of the Huna Łingítwho sustained themselves on the abundant resources found throughout the Bay prior to the Little Ice Age. Although villages inside the Bay were overrun by glacial advances in the 1700's, the Huna Łingít re-established numerous fish camps and several seasonal villages soon after glacial retreat. The 1925 establishment of Glacier Bay National Monument (and later National Park in 1980) led to a period of alienation and strained relationships between tribal people and the National Park Service.

In response to input from the Hoonah Indian Association, the 1997 Comprehensive Design Plan for Bartlett Cove included the development of a plank house to serve as an "anchor" for traditionally associated people. Further analysis and design took place in 2011-2013. The $2.9 million contract was awarded to P.K. Builders of Ketchikan, AK. Construction on the facility began in 2015.

 
Leaders of Glacier Bay National Park and the Hoonah Indian Association shaking hands
NPS Superintendent Philip Hooge and HIA President Frank Wright, Jr.

NPS

Current Status
Construction on the Huna Tribal House was completed on schedule in June 2016. The National Park Service and tribal craftsmen cooperatively installed the cultural elements (carved house screens, house posts) in mid-July. Totem poles were completed and installed in 2017.

The Grand Opening Celebration took place on August 25, 2016 and included the ceremonial welcoming of traveling canoes, a traditional Łingít house dedication ceremony, and traditional song and dance. The event attracted many hundreds of tribal members, other native representatives, Congressional delegates, other interested organizations, and the visiting public. The event was documented and live-streamed for those unable to attend. The National Park Service and the Hoonah Indian Association adopted a joint incident command structure to ensure that the event was safely open to the broadest range of visitors.

The Tribal House serves as a venue for tribal members to share their culture and history with the visiting public. The National Park Service and the tribal government are exploring ways to build federal career pathways for tribal members interested in sharing their culture and expertise at the Tribal House.

The Tribal House is also used for a range of cultural activities including language retreats, traditional memorial gatherings, spirit camps, and Tribal Council meetings. Such activities facilitate the preservation of ethnographic resources important to the park, encourage tribal participation in park management, and continue to strengthen relationships between the tribe and the National Park Service.

Future projects, include the carving of a "Healing Totem Pole" to commemorate the evolving relationship between the Huna clans and the National Park Service, are planned such that the story of healing a strained relationship will become part of the fabric of our communication with each other and park visitors. Wayside exhibits and audio-visual media opportunities are being developed. The tribal government is simultaneously exploring a range of tribal programs and activities to take place at the Tribal House so Xunaa Shuká Hít can be a place of discovery and of re-connection for generations to come.

 
Tlingit line

Last updated: April 22, 2025

Park footer

Contact Info

Mailing Address:

Glacier Bay National Park & Preserve
PO Box 140

Gustavus, AK 99826

Phone:

907 697-2230

Contact Us