An official website of the United States government
Here's how you know
Official websites use .gov A
.gov website belongs to an official government
organization in the United States.
Secure .gov websites use HTTPS A
lock (
) or https:// means you've safely connected to
the .gov website. Share sensitive information only on official,
secure websites.
Statue of Liberty National Monument and Ellis Island
Superintendent's Compendium
Approved by Superintendent on January 5, 2026
Introduction
The Superintendent’s Compendium is the summary of park-specific rules implemented under the Code of Federal Regulations Title 36 (36 CFR). It serves as public notice, identifies areas closed for public use, provides a list of activities requiring a special use permit or reservation, and elaborates on public use and resource protection regulations pertaining specifically to the administration of Statue of Liberty National Monument & Ellis Island. This Compendium is separate and apart from the NPS general regulations (36 CFR) and NPS Management Policies which may be found on the NPS website. A signed version of this Compendium is available from the Superintendent's Office.
I. 36 CFR §1.5 – Visiting Hours, Public Use Limits, Closures, and Area Designations for Specific Use or Activity
(a)(1) The following visiting hours and public use limits are established for all or for the listed portions of the park, and the following closures are established for all or a portion of the park to all public use or to a certain use or activity.
Visiting Hours:
All areas of either island, not otherwise closed to public use, will be open to public use according to the schedule of visitor hours.
Both islands will be open to public use according to the National Park Service approved schedule of the Statue of Liberty and Ellis Island ferry service, weather permitting. The islands will close to public use fifteen minutes before the scheduled departure time of the final closing ferry of the day.
Portions of either island may close earlier than fifteen minutes before the scheduled departure time of the final closing Statue of Liberty and Ellis Island ferry of the day at the discretion of the superintendent or designee due to emergencies or operational necessity.
Both islands are closed to all public use and permitted activities on December 25 and the fourth Thursday in November (Thanksgiving) annually. Additionally, both islands may close two hours early on December 24 in coordination with the park’s ferry transportation concessioner.
Public Use Limits:
All areas of either island, not otherwise closed to public use, will be open to public use with the following limits:
Any or all areas may be closed to public use or a permit issued may be canceled at the discretion of the superintendent or designee.
The maximum island count for either island shall not exceed 4,500 visitors at any one time.
All school or youth groups, excluding college groups, shall be accompanied by a minimum of one chaperon for every ten students during the group’s visit. Chaperones must be a minimum of twenty-one (21) years of age and designated by the school or sponsoring organization. Students found without their chaperones may be removed from either island.
Disorderly persons or groups may be removed from the park and prohibited from returning to the park on the day they are removed.
It is prohibited to sit or stand upon the railings of any walkway, stairway, escalator, seawall, dock, viewpoint, museum area or motor vessel.
Climbing over, under, or around railings, gates, doors, stanchions and lines, barricades or other physical barriers used to control public access is prohibited.
It is prohibited to sit, stand upon, or climb any ledge, wall, refuse receptacle, tree, exhibit, statue, flagpole, the American Immigrant Wall of Honor, or Fort Gibson.
Touching the original torch of the Statue of Liberty or historic graffiti on Ellis Island is prohibited.
Persons, packages and vehicles are subject to search and canine inspection at any time on either island for public safety and security. Failure to allow an authorized person to perform a search is prohibited. Failure to comply with the direction of a lawful authority may result in a legal citation or arrest.
Public nudity and any behavior that interferes with, or causes a disturbance to park operations, are prohibited.
It is prohibited to consume food or drink inside any structure open for the general public on either island except in concession dining facilities unless authorized by the Superintendent or designee.
Photography/recording activity is prohibited within the security screening areas if it interferes with or slows down the security screening process.
Face masks and/or costumes that are designed to conceal the identity of a person are prohibited.
The maximum occupancy of the Statue of Liberty pedestal is 500 people per hour. All requests for VIP access to the pedestal outside the normal ticketing process are at the discretion of the superintendent and are coordinated through the office of the superintendent.
The maximum number of people allowed to climb the staircase to the crown of the Statue of Liberty is 60 people per hour. Because of this very limited capacity and to allow as many members of the general public to have access to the crown, no VIP access shall be granted to the crown during visitor hours and no tickets shall be withheld for VIPs outside the normal ticketing process.
All requests for VIP tours of either island are arranged at the discretion of the Superintendent and coordinated through the office of the superintendent. VIP access does not supersede safety, capacity, or security requirements.
To ensure the safety and enjoyment of our visitors, crown visits are limited to 10 minutes.
Closures:
Launching, landing, or operating an Unmanned Aircraft System (UAS) from or on lands and waters administered by the National Park Service within the boundaries of Statue of Liberty National Monument and Ellis Island is prohibited except as approved in writing by the superintendent.
Definition: The term “unmanned aircraft” or UAS means a device that is used or intended to be used for flight in the air without the possibility of direct human intervention from within or on the device, and the associated operational elements and components that are required for the pilot or system operator in command to operate or control the device (such as cameras, sensors, communication links.) This term includes all types of devices that meet this definition (e.g. model airplanes, quadcopters, drones) that are used for any purpose, including for recreation or commerce.
Determination: This restriction is necessary to prevent unacceptable impacts to park resources and values from the use of uncrewed aircraft. Potential impacts include harming visitors, interfering with rescue operations, causing excessive noise, impacting viewsheds, and disturbing wildlife. This restriction is required by NPS Reference Manual #60: Aviation Management, Chapter 12 – Uncrewed Aircraft Systems.
The following areas of Liberty Island shall be closed to all public use:
The following areas within the Statue of Liberty, the pedestal, the Statue of Liberty Museum, and Fort Wood on Liberty Island: the portion of the Statue of Liberty from the right shoulder to the torch (inclusive); the original torch of the Statue of Liberty at the Statue of Liberty Museum and the area inside the railing surrounding it; areas of the Statue of Liberty and pedestal outside the public access stairs and landings and museum exhibits; work areas; storage areas; offices; locker rooms; mechanical rooms; electrical rooms; crawl spaces; and boiler rooms.
The Statue of Liberty torch is restricted to employees who have been authorized access for official purposes.
The Shuttle Dock, extending from the seawall on the northeast corner of Liberty Island, except when in use by the Statue of Liberty/Ellis Island Ferry as authorized by the Superintendent or designee. See attached map.
The designated 150-yard maritime security zones around each island.
All Liberty Island areas within the Administrative and Maintenance compound. This area is defined as follows: commencing at the black granite wall along the seawall north of the Ellis Island Observation Area which is northeast of the Flagpole Plaza, the line runs southwesterly around the museum building to the tall curved brick wall with the metal gates at the northwest side of the Arrival Plaza. The line follows the tall brick wall southwesterly to the seawall. The line continues along the seawall heading northwesterly, northerly, northeasterly, easterly, and southeasterly until it reconnects with the commencement point of this description. All areas within this line are closed to public use. In addition, the lawn immediately adjacent to the Statue of Liberty is closed to the public. See attached map.
The following areas within the Concession Building on Liberty Island: stairways outside of the public access stairs, work areas, storage areas, kitchen, offices, locker rooms, mechanical rooms, electrical rooms, crawl spaces, boiler room, and the basement.
The fenced area on the Northeast, East, and Southeast side of the Concession Building on Liberty Island. This is the area between the fence and the exterior of the building including the air conditioner/basement access area, stairs and lift.
All elevator, electrical, water, sewer, HVAC, and drainage pits, pipe runs, and tunnels on either island.
The following areas of Ellis Island shall be closed to all public use:
The Ellis Island Ferry Slip, including the entrance and inside the slip. Vessels may not block egress.
The designated 150-yard maritime security zones around each island.
The service bridge between Liberty State Park in New Jersey and Ellis Island. Access to Ellis Island via the service bridge is only permitted with the permission of the superintendent or designee.
The Ellis Island Freight, Maintenance and Administrative Compound along the entirety of the west side of the island.
The following areas within the Main Building and Railroad Ticket office on Ellis Island: stairways outside of the public access stairs and landings, work areas, storage areas, kitchen, offices, locker rooms, mechanical rooms, electrical rooms, crawl spaces, boiler rooms and basements.
Any structure other than the Main Building, Railroad Ticket Office or Kitchen and Laundry Building (K&L) on Ellis Island unless authorized by the superintendent or designee.
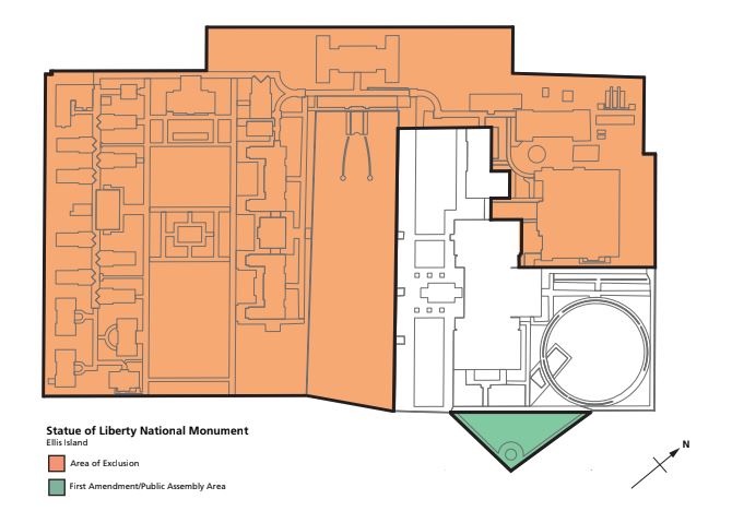
A portion of Island One, all of Islands Two and Three, and the ferry slip on Ellis Island. The area is defined as follows: commencing at the northwestern exit to the Railroad Ticket Office, the line runs in a northerly direction to the seawall. The line follows the seawall heading northwesterly, westerly, southwesterly, southerly, southwesterly, southerly, southeasterly, easterly, and northeasterly until it crosses the opening of the ferry slip and joins the southeast corner of Island One. The line turns northwesterly along the ferry slip to the fence at the New Ferry Building. The line turns along the fence heading northeasterly and southeasterly until it joins through the far side of the K&L. The line continues southeasterly and northeasterly along the rear of the K&L until it joins the exterior wall of the Main Building. The line continues northeasterly and southeasterly following the exterior wall of the Main Building until it joins the fence in the courtyard between the main building and the Baggage and Dormitory Building (B&D). The line turns northeasterly following the fence until it joins the exterior wall of the B&D. The line turns southeasterly following the exterior wall of the B&D until it joins the exterior wall of the Railroad Ticket Office. The line turns northeasterly following the exterior wall of the Railroad Ticket Office until it reconnects with the commencement point of this description. All areas within this line are closed to public use, except the New Ferry Building, New Immigration Building (park offices) and Island Three areas as authorized by the Superintendent or designee. See attached map.
All elevator, electrical, water, sewer, HVAC, and drainage pits, pipe runs, and tunnels on either island.
Determination: These closures are in effect to maintain the safety of visitors and the physical security of park resources.
(a)(2) The following areas have been designated for a specific use or activity, under the conditions and/or restrictions as noted:
The flagpole plazas on Liberty and Ellis islands have been designated for the following activities that have been issued a permit from the superintendent or designee: public assemblies and meetings; sale or distribution of printed matter. See attached maps.
Special events may be held in areas of the park as specified in a permit issued by the superintendent or designee.
Filming, still photography, and audio recording activity may require a permit, consistent with 54 U.S.C. 100905.
Filming, still photography, and audio recording activity that occurs in closed areas, requires exclusive use of a site or area, or involves a set or staging equipment other than handheld equipment (such as a tripod, monopod, and handheld lighting equipment) requires a permit, unless the activity is affiliated with an activity or event that has been allowed under a written authorization, such as a special use permit.
Filming, still photography, and audio recording that involves more than eight individuals requires a permit, unless the NPS has specifically notified an individual or group that a permit is not required, or if the activity is affiliated with an activity or event that has been allowed under a written authorization, such as a special use permit.
If a permit is required for the reasons stated above, or if the NPS otherwise determines and then notifies an individual or group that a permit is required for a filming, still photography, or audio recording activity, then engaging in that activity without a permit is prohibited. Violating a term or condition of a permit issued by the NPS for a filming, still photography, or audio recording activity is prohibited, and may result in the suspension or revocation of the permit, in addition to any penalties that may apply under 36 CFR 1.3.
Federal law at 54 U.S.C. 100905 states that permits and fees are not required for filming, still photography, or audio recording in park areas if certain requirements are met. These requirements address various topics, including, but not limited to, group size, location, equipment, potential impacts to resources and visitors, and the likelihood that the NPS will incur related administrative costs. If any of these requirements are not met, the law allows the Secretary of the Interior, acting through the NPS, to require a permit for the subject activity. Permit requirements are imposed by the superintendent under discretionary authority provided by 36 CFR 1.5(a)(2), which allows the superintendent to impose conditions or restrictions on a use or activity, consistent with applicable legislation, to implement management responsibilities. The general regulations for permits in 36 CFR 1.6 do not apply to permits issued for filming, still photography, and audio recording, which instead are governed by the statutory provisions in 54 U.S.C. 100905. The imposition of permit requirements, on a case-by-case basis, for filming, still photography, or audio recording does not require rulemaking under 36 CFR 1.5(b). Requiring a permit with reasonable terms and conditions in accordance with statutory requirements at 54 U.S.C. 100905 is not highly controversial, will not result in a significant alteration in the public use pattern of the System unit, will not adversely affect the System unit’s natural, aesthetic, scenic or cultural values, or require a long-term or significant modification in the resource management objectives of the System unit, because the permit requirement is limited in time and scope to the specific activities authorized by the permit, which contain terms and conditions that protect the values, resources, and visitors of the System unit, and implements federal law.
The following restrictions and/or conditions are in effect for the specific uses or activities noted:
Fishing from anywhere including the docks, ferry slip, or bridge is prohibited.
The landing of fixed-wing or rotary aircraft, except in emergencies involving public safety or serious property loss, is prohibited.
Launching, landing, or operating an unmanned aircraft from or on lands and waters administered by the National Park Service are prohibited on both islands except as approved in writing by the superintendent.
The delivery or retrieval of a person or object by airborne means, except in emergencies involving public safety or serious property loss, is prohibited.
The use of tripods inside any structure during times open to public use is prohibited except as approved by the superintendent or designee. Tripods used exterior to any structure may not obstruct public use or pedestrian flow. Tripods may not present a safety hazard at any time when used anywhere on either island.
The docking or landing of any watercraft, or dropping off persons, except by concessioner ferry or as authorized by the Superintendent or designee, or in emergencies involving public safety or serious property loss or by authorized Federal, State, and local officers in the performance of their official duties, is prohibited.
The flying of kites, model planes, or similar objects is prohibited.
The playing of baseball, football, soccer, Frisbee, hacky sack, golf, catch, or similar recreation activities is prohibited.
Park security photo ID cards specified by the Superintendent must be visibly worn by all concessionaires, contractors, and out-of-uniform National Park Service employees when on either island in areas closed to the public or on government vessels operated by the Statue of Liberty National Monument. Failure to wear a park photo ID card is prohibited.
Park security temporary ID cards, lanyards or wristbands specified by the superintendent must be visibly worn by all visitors, not on a guided National Park Service tour whenever on either island in areas closed to the public or on government vessels operated by the Statue of Liberty National Monument. Failure to wear a park temporary ID card is prohibited.
The placement of any unauthorized object or the projection of any unauthorized light or images upon any parts of the Statue of Liberty and associated fixtures in a way that would alter the appearance of this American icon is prohibited.
(a)(3) The following restrictions, limits, closures, designations, conditions, or visiting hour restrictions imposed under §§(a)(1) or (2) have been terminated:
Camping and overnight stays are prohibited on both islands, including inside buildings.
Horseback riding is prohibited.
Swimming and wading in park waters are prohibited unless authorized by the Superintendent or designee via a special use permit.
Closed Circuit Television (CCTV) Policy Statement:
Visitors should be aware that certain public areas of the park are monitored by Closed Circuit Television (CCTV) for safety and security purposes.
In accordance with National Park Service Law Enforcement Reference Manual 9 (RM-9), notice is hereby given that Statue of Liberty National Monument and Ellis Island use CCTV security camera monitoring. The park’s use of CCTV for law enforcement and security purposes will only be to visually monitor public park areas and public activities where no constitutionally protected reasonable expectation of privacy exists. Such CCTV use – which will have adequate privacy and First Amendment safeguards – will help ensure public safety and security; facilitate the detection, investigation, prevention, and deterrence of terrorist attack and crime; help ensure the safety of citizens and officers; help assist in the proper allocation and deployment of law enforcement and public safety resources; and help facilitate the protection of the innocent and the apprehension and prosecution of criminals. (RM-9, 26.1) This policy does not restrict the official use of CCTV in government administrative areas, including administrative buildings, jail holding facilities (RM-9, 26.3.7), revenue collection sites, etc., where the government may record/monitor its facilities. For example, the government may perform unrestricted video/audio recording at revenue collection points (entrance stations, visitor center counters, etc.). This policy does not restrict the use of an Audio/Visual Recording Device (AVRD) in patrol vehicles or officer-worn recording devices used by commissioned rangers and/or United State Park Police (USPP) Officers. (RM-9, 26.1). Operation of CCTV cameras, maintenance of recorded images and use of recorded images will be in accordance with NPS and Department policy and applicable laws and regulations. (RM-9, 26.1-26.4) No person will be targeted or monitored merely because of race, religion, gender, sex, disability, national origin, or political affiliation or views. (RM-9, 26.4.2) Nothing in this policy statement is intended to create any rights, privileges, or benefits not otherwise recognized by law.
II. 36 CFR §1.6 – Activities That Require a Permit
Activities requiring a permit are listed throughout this document under the specific 36 CFR section that authorizes or requires the issuance of a permit. Additionally, pursuant to 36 CFR §1.6 (f), the following is a compilation of those activities and/or those public uses from which a permit from the superintendent is required.
(f) The following is a compilation of those activities for which a permit from the superintendent is required:
Carrying and using a trap or net pursuant to 36 CFR §2.4 (d).
Collecting research specimens pursuant to 36 CFR §2.5.
Certain audio disturbances pursuant to 36 CFR §2.12.
Delivering or retrieving a person or object by parachute, helicopter, or other airborne means, except in emergency situations, pursuant to 36 CFR §2.17.
Soliciting gifts, money, goods or services pursuant to 36 CFR §2.37.
Using, possessing, storing, or transporting explosives, blasting agents, or explosive materials pursuant to 36 CFR §2.38 (a).
Using or possessing fireworks and firecrackers pursuant to 36 CFR §2.38 (b).
Holding sports events, pageants, regattas, public spectator attractions, entertainments, ceremonies, and similar events pursuant to 36 CFR §2.50 (a).
Holding First Amendment activities with more than 25 people pursuant to 36 CFR §2.51(b).
Selling or distributing printed matter pursuant to 36 CFR §2.52 (b).
Livestock use and agriculture pursuant to 36 CFR §2.60 (b).
Residing on Federal lands pursuant to 36 CFR 2.61.
Displaying, posting, or distributing advertisements or commercial notices pursuant to 36 CFR §5.1.
Engaging in or soliciting any business in park areas pursuant to 36 CFR §5.3.
Using commercial vehicles on government roads within park areas when such use is in no way connected with the operation of the park pursuant to 36 CFR 5.6.
Constructing buildings or other facilities pursuant to 36 CFR §5.7.
Some filming, still photography, and audio recording (depends upon the facts and circumstances; contact the park for more information). 36 CFR 1.5(a)(2) and 54 U.S.C. 100905.
36 CFR §2.1 Preservation of Natural, Cultural and Archeological Resources
Possessing, destroying, injuring, defacing, removing, digging or disturbing living or dead wildlife, fish, plants, paleontological specimens, cultural resources, archeological resources, mineral resources, or any of the parts or products thereof, is prohibited.
Introducing wildlife, fish or plants into park area ecosystems is prohibited.
Walking on, climbing, entering, ascending, descending, or traversing an archeological or cultural resource, monument, or statue is prohibited.
Generally, collecting natural materials from the park is prohibited under CFR §2.1 (a) (1); however, pursuant to CFR §2.1 (c) fruits, nuts, berries or unoccupied seashells may be gathered by hand for personal use or consumption, in accordance with the noted size, quantity, collection sites and/or possession and consumption restrictions.
36 CFR §2.2 Wildlife Protection
The taking, feeding, touching, teasing, frightening or intentionally disturbing of wildlife is prohibited.
Hunting is prohibited.
36 CFR §2.4 Weapons, Traps and Nets
Pursuant to 18 U.S.C. § 930, firearms are prohibited in federal facilities. Federal facilities are marked with signs at public entrances.
Authorized Federal, State, and local law enforcement officers may carry firearms in the performance of their official duties.
36 CFR §2.5 Research Specimens
The taking of plants, fish, wildlife, rocks or minerals is prohibited except under the terms and conditions of a specimen collection permit.
36 CFR §2.11 Picnicking
Visitors must remove all garbage from picnicking site after use. Littering and dumping are prohibited.
36 CFR §2.12 Audio Disturbances
Operating motorized equipment, machinery, audio device or musical instrument in a manner that makes unreasonable noise.
Operating power tools in developed areas is prohibited, except pursuant to the terms and conditions of a permit or contract.
Operating any type of portable motor or engine, or device powered by a portable motor or engine in non-developed areas is prohibited, except pursuant to the terms and conditions of a permit or contract.
Operating audio amplification devices designed to amplify sounds such as speaker systems, personal wireless speakers, radios, megaphones, bull horns, and other similar devices is prohibited, except in connection with a public gathering or special event for which a permit has been issued pursuant to 36 CFR §2.50 or §2.51.
36 CFR §2.13 Fires
The lighting or maintaining of fires is prohibited.
36 CFR §2.14 Sanitation and Refuse
Disposing of refuse other than in refuse receptacles is prohibited under 36 CFR §2.14 (a) (1).
Using park refuse receptacles or facilities for dumping household, commercial or industrial refuse is prohibited under 36 CFR §(a) (2).
36 CFR §2.15 Pets and Service Dogs
Possessing pets at Statue of Liberty and Ellis Island is prohibited. This restriction does not apply to service animals. The National Park Service will use the same definition of service animal currently found in DOJ regulations 28 CFR §36.104 and will not rely on 36 CFR §2.15. Service animals will be allowed to accompany visitors or employees with a disability. For safety reasons, service animals are not allowed in areas above 6P level (observation deck) inside the monument.
A service animal must be under the control of its handler. Under the Americans with Disabilities Act, service animals must be harnessed, leashed, or tethered, unless the individual’s disability prevents using these devices or these devices interfere with the service animal's safe, effective performance of tasks. In that case, the individual must maintain control of the animal through voice, signal, or other effective controls.
Service dogs must remain on leashes while in the park.
Leaving service dogs unattended and tied to an object is prohibited.
Service dog owners must pick up pet waste and remove it from the park or dispose of it in an appropriate refuse receptacle.
36 CFR §2.19 Winter Activities
Skiing, snowshoeing, ice skating, sledding, inner tubing, tobogganing, and similar winter sports are prohibited.
36 CFR §2.20 Skating, Skateboards and Similar Devices
Possession of skates, skateboards, rollerblades, coasting vehicles, self-balancing scooters or similar device is prohibited.
36 CFR §2.21 Smoking
All buildings and structures on both islands are closed to smoking. These designations are made pursuant to Executive Order 13058.
36 CFR §2.22 Property
Abandoning property within the park is prohibited.
Found property must be turned in to the lost & found offices on Liberty or Ellis Island as soon as practicable.
Property determined to be left unattended will be impounded by the superintendent pursuant to 36 CFR §2.22 (b) (1)
Found or impounded property will be inventoried pursuant to 36 CFR §2.22 (b) (3).
Visitors and their belongings are subject to inspection. Security screening, similar to airport security procedures, is required for those boarding any concession ferry to Liberty Island or Ellis Island and must be completed at the point of departure before boarding. Secondary airport-style security screening is required for those entering the Statue of Liberty. A list of prohibited items will be posted on the park’s public website and at security screening locations.
36 CFR §2.35 Alcoholic Beverages and Controlled Substances
All park areas open to the public are closed to the consumption of alcoholic beverages except during special events when authorized via special use permit or with the written approval of the superintendent.
36 CFR §2.37 Noncommercial Soliciting
Soliciting or demanding gifts, money, goods or services is prohibited except pursuant to the terms and conditions of a permit that has been issued under 36 CFR §2.50, §2.51, or §2.52.
36 CFR §2.38 Explosives
Using, possessing, storing, or transporting explosives, blasting agents or explosive materials is prohibited, except pursuant to the terms and conditions of a permit or contract.
Using, or possessing fireworks and firecrackers is prohibited, except pursuant to the terms and conditions of a permit or contract.
36 CFR §2.50 Special Events
Sports events, pageants, regattas, public spectator attractions, entertainments, ceremonies, and similar events are allowed, provided there is a meaningful association between the park area and the event(s), and the observance contributes to visitor understanding of the significance of the park area, and a permit has been issued by the Superintendent.
All requests for special event permits must be made a minimum of ten (10) business days in advance and in writing on the approved form to the Superintendent or designee. This ten (10) business day period may be waived by the Superintendent or designee if the size and nature of the activity will not reasonably require the commitment of park resources or personnel in excess of that which are normally available or which can reasonably be made available within the necessary time period.
Any or all areas of either island may be closed to public use or a permit issued may be canceled at the discretion of the Superintendent or designee.
All costs incurred by the Statue of Liberty National Monument as a result of a special event that has been issued a permit from the Superintendent or designee shall be recovered from the permit holder.
Noise levels must not exceed the limits established in 36 CFR §2.12, Audio disturbances.
Special events shall not interfere with normal public use or pedestrian flow.
Participants of special events must arrive by the park’s ferry transportation concession vessel(s) unless otherwise authorized by the superintendent.
The permit holder of a special event permit requiring power, equipment, furniture, or other items must provide their own materials and transport those materials aboard the park’s ferry transportation concession vessel unless specified otherwise in the permit.
The permit holder is responsible for cleaning the special event area upon the completion of the event.
A permit may contain additional reasonable conditions and time limitations, consistent with this section, in the interest of protecting park resources, the use of nearby areas by other persons, and other legitimate park values or concerns.
36 CFR §2.51 First Amendment Activities
Pursuant to 36 CFR §2.51 (c) (2), the following locations are designated as available for First Amendment activities (See attached maps):
Flagpole Plaza at Statue of Liberty National Monument
Flagpole Plaza at Ellis Island
Permit Conditions for Public Assemblies
In addition to public assemblies and meetings, gatherings, parades, First Amendment activities, or other public expressions of views are subject to the conditions of this regulation.
All requests for public assembly permits will be approved or denied within ten (10) days of receiving a complete and fully executed application.
Public assembly permits will be issued with a minimum of a one-hour buffer between permits.
Public assemblies may only take place during hours when either island is open to public use.
No signs or placards shall be permitted except those that are hand-held and made of cardboard, poster board or cloth having dimensions no greater than three (3) feet in width, three (3) feet in length, and one-eighth (1/8) inch in thickness. No supports shall be permitted for signs or placards. All signs and placards shall be attended at all times and may not be elevated in a manner so as to exceed a height of six feet above the ground at their highest point. Signs or placards shall be considered to be attended only when an individual is within three feet of his or her sign or placard. No signs or placards shall be tied, fastened, or otherwise attached to or draped over any wall, building façade, post, rail, fence, sign, statue, pedestal, flagpole, refuse receptacle, tree or other structure in the park. Signs or banners greater than three (3) feet in width, and three (3) feet in length are prohibited from entering the monument.
Any or all areas of either island may be closed to public use or a permit issued may be canceled at the discretion of the superintendent or designee.
Noise levels must not exceed the limits established in 36 CFR §2.12, Audio disturbance.
Public assemblies shall not interfere with normal public use or pedestrian flow.
Participants of public assemblies must arrive by the park’s ferry transportation concession vessels.
The permit holder of a public assembly permit requiring power, equipment, furniture, or other items must provide their own materials and transport those materials aboard the park’s ferry transportation concession vessels. No structures may be constructed. Approval from the superintendent or designee must be obtained to use any of these items in advance.
The permit holder is responsible for cleaning the public assembly area upon the completion of the event.
A permit may contain additional reasonable conditions and additional time limitations, consistent with this section, in the interest of protecting park resources, the use of nearby areas by other persons, and other legitimate park values and concerns.
First Amendment activities involving 25 persons or fewer may be held without a permit in the designated areas provided they do not:
Cause injury or damage to park resources;
Unreasonably impair the atmosphere of peace and tranquility
Unreasonably interfere with interpretive, visitor service, or other program activities, or with the administrative activities of the National Park Service;
Substantially impair the operation of public use facilities or services of National Park Service concessioners, holders of commercial use authorizations, or contractors;
Present a clear and present danger to public health and safety; or
Be incompatible with the nature and traditional use of the park area
Interfere with another activity at the same time and place for which the superintendent has or will be granting a permit.
Determination: Designated First Amendment areas are intended to balance constitutional rights with visitor safety, resource protection, and operational security.
36 CFR §2.52 Sale or Distribution of Printed Matter
All costs incurred by the Statue of Liberty National Monument as a result of a sale or distribution of printed matter permit from the superintendent or designee may be recovered from the permit holder.
The commercial sale of items other than the printed matter approved for sale with a permit is prohibited.
The sale or distribution of printed matter shall not interfere with normal public use or pedestrian flow.
Participants of the sale or distribution of printed matter must arrive by the park’s ferry transportation concession vessels.
The permit holder of a sale or distribution of printed matter permit requiring power, equipment, furniture, or other items must provide their own materials and transport those materials aboard the Statue of Liberty/Ellis Island Ferry. No structures may be constructed. Approval from the superintendent or designee must be obtained to use any of these items in advance.
The permit holder is responsible for cleaning the sale or distribution of printed matter area upon the completion of the event.
A permit may contain additional reasonable conditions and additional time limitations, consistent with this section, in the interest of protecting park resources, the use of nearby areas by other persons, and other legitimate park values and concerns.
36 CFR §2.61 Residing on Federal Lands
Residing on either island is prohibited.
36 CFR §2.62 Memorialization
The scattering of human and pet ashes from cremation is prohibited on the maintained landscapes of both Liberty and Ellis Island. The Marine Protection, Research and Sanctuaries Act (MPRSA) prohibit the placement of human remains in ocean waters within three nautical miles from shore, i.e., the ordinary low water mark or a closing line drawn on charts across the openings of bays and rivers per 40 CFR § 229.1
36 CFR §3.16 Swimming and Wading
It is prohibited to swim, wade, SCUBA dive or snorkel within park waters with the exception of authorized Federal, State, and local law enforcement officers and search and rescue teams in the performance of their official duties or as authorized by the superintendent or designee.
36 CFR §3.3 Vessel Permits
No permit will be issued for the use of a vessel within the park boundaries since those waters are closed to public use.
36 CFR §4.11 (a) Load, Weight and Size Limits
The limit on the weight of non-emergency vehicles operating on sidewalks shall not exceed 5,120 pounds.
The load limit for the Ellis Island service bridge is 36 tons.
A permit is required for vehicles exceeding designated load, weight and size limits.
All requests for a vehicle exceeding designated load, weight and size limits permit must be made a minimum of 5 days in advance and in writing to the Superintendent or designee. This 5-day period may be waived by the Superintendent or designee if the size and nature of the activity will not reasonably require the commitment of park resources or personnel in excess of that which are normally available or which can reasonably be made available within the necessary time period.
Any or all areas of either island may be closed to public use or a permit issued may be canceled at the discretion of the superintendent or designee.
All costs incurred by the Statue of Liberty National Monument as a result of vehicles exceeding designated load, weight and size limits permit from the superintendent or designee may be recovered from the permit holder.
A permit may contain additional reasonable conditions and additional time limitations, consistent with this section, in the interest of protecting park resources, the use of nearby areas by other persons, and other legitimate park value concerns.
36 CFR §4.21 (b) Speed Limits
The speed limit on the temporary bridge between Liberty State Park in New Jersey and Ellis Island is 15 miles per hour.
The speed limit on paved and gravel roadways (which includes parking lot on Ellis Island) is 10 miles per hour.
The speed limit on sidewalks and grass areas on either island is 5 miles per hour.
36 CFR §4.30 Bicycles
Bicycle use, including electric bicycles (e-bikes) is not allowed within the park in areas that are otherwise open for use by the general public pursuant to 36 CFR §4.30 (a) except as used by government employees in the performance of official duties or otherwise approved by the superintendent.
36 CFR §5.1 Advertisements
Commercial notices or advertisements may not be displayed, posted, or distributed in park area unless prior written permission has been given by the superintendent.
36 CFR §5.3 Business Operations
Engaging in or soliciting any business in park areas, except in accordance with the provision of a permit, contract, or other written agreement with the United States is prohibited.
Individuals or businesses that provide site orientation, interpretation and educational tours within areas administered by the park to paying customers are considered commercial tour guides and are subject to a Commercial Use Authorization issued by the superintendent.
Guided services are not permitted inside the Statue of Liberty Museum and the sixth-floor pedestal observation level of the Statue of Liberty on Liberty Island, and inside the National Museum of Immigration at Ellis Island; therefore in these areas commercial guided services are not authorized, with the following exception: During the colder months from November to March, and periods of inclement weather (i.e., lightning, rain, snow, sleet, hail) commercial tour guides may provide a brief site orientation (5 to 7 minutes) for their group in the first-floor Baggage Room of the Ellis Island National Museum of Immigration. Guides must wear a picture ID with their name and the company they work for on the outside of their clothing so that it is visible at all times while on the islands.
Determination: These identified areas are the most highly visited and congested areas within the park. Commercial guided tours add to the congestion in these identified areas and prevent the free flow of visitor movement and impact public programs and the visitor experience.
36 CFR §5.6 Commercial Vehicles
Using commercial vehicles on government roads within park areas when such use is in no way connected with the operation of the park is generally prohibited, and requires permission or a permit from the superintendent pursuant to 36 CFR §5.6 (b), (c).
36 CFR §5.7 Construction of Buildings or Other Facilities
Such activities are prohibited, except in accordance with the provisions of a valid permit, contract, or other written agreement with the United States.
Public Assembly Area Designations and Closed/Restricted Areas
The public assembly area is located at the flagpole area on Ellis Island. The flagpole area boundary is defined as the area represented in green on the map. The public assembly area is located at the flagpole area on Liberty Island. The flagpole area boundary is defined as the area represented in green on the map.
The public assembly area is located at the flagpole area on Ellis Island. The flagpole area boundary is defined as the area represented in green on the map.
The public assembly area is located at the flagpole area on Liberty Island. The flagpole area boundary is defined as the area represented in green on the map.
Last updated: January 9, 2026
Park footer
Contact Info
Mailing Address:
Receiving Office
1 Ellis Island
Jersey City,
NJ
07305