
Socorro Mission (Mission Nuestra Señora de la Limpia Concepción del Pueblo de Socorro)
Socorro, Texas
Coordinates: 31.660086, -106.303474
#TravelSpanishMissions
Discover Our Shared Heritage
Spanish Colonial Missions of the Southwest Travel Itinerary

Photo by Lisa Jacobs. Courtesy of Flickr Creative Commons.

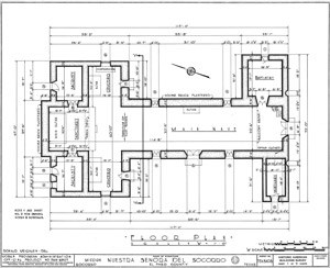
By Donald Weichlein, Historic American Building Survey. Courtesy of the Library of Congress.

NPS photo.

Photo by Marvin Eickenroht, Historic American Building Survey. Courtesy of the Library of Congress.
Plan Your Visit
Socorro Mission is listed in the National Register of Historic Places and is a Texas State Landmark located at 328 S. Nevarez Rd. south of El Paso, TX on I-10 at Moon Rd. and FM 258. It is open to the public Monday-Friday, 8:00am to 4:00pm. For more information, visit the Catholic Diocese of el Paso website or call 915-859-7718. The Socorro Mission is located along the El Camino Real de Tierra Adentro National Historic Trail. The Socorro Mission has also been documented by the National Park Service’s Historic American Buildings Survey and is featured in the National Park Service El_Camino_Real_de_Tierra_Adentro/Socorro_Mission Travel Itinerary and the South and West Texas Travel Itinerary.
Last updated: April 15, 2016